產品概述:
該系統包含了瓦楞紙板自動開箱、成型、折邊、底部膠封或膠粘、輸送、自動制袋、套袋、整袋、翻邊一體化功能,其自動制袋套袋同樣可實現與包裝桶的配合使用。
性能指標:
紙箱尺寸:L(200~500)×W(150~400)×H(100~450)mm
封箱方式:OPP膠帶或熱熔膠方式
適用膠帶:48/60/72mm
薄膜厚度:3~10S
設備能力:8~20個/min
電源功耗:7.5~11kw/h(380VAC/50HZ)
氣源壓力:0.5~0.7Mpa
壓縮空氣:160NL/min
技術特點:
根據不同規格紙箱可實現自動識別或指令程序設定,適應性強
可選擇膠帶封底或熱熔膠噴膠封底,靈活性高
紙板庫可加大設計,減少補充頻率
可根據不同厚度的薄膜選擇氣壓或機械整袋裝置
巧妙的翻邊機構,以確保薄膜袋與紙箱的一致性
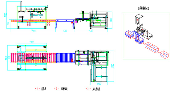
系統布置:
